Saneringsvagnar

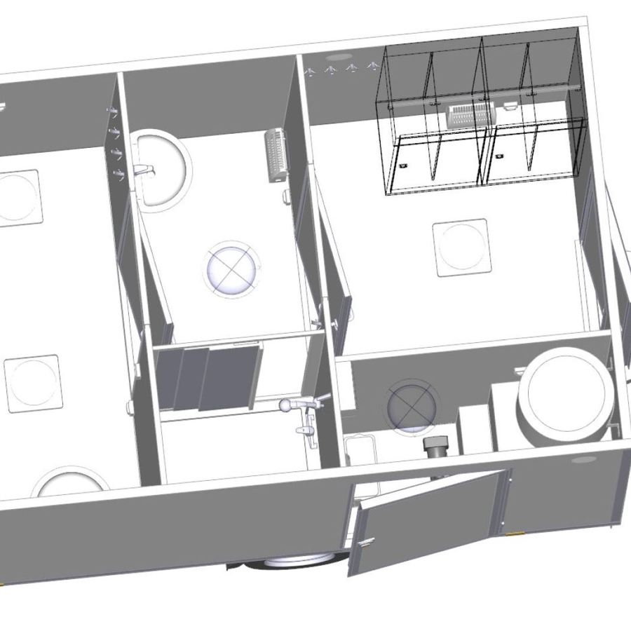
Trestegssluss med dusch och omklädning. Får köras i 80 km/h och flyttas enkelt mellan arbetsplatser.

Läs mer

Våra saneringsvagnar är specialbyggda manskapsvagnar för användning vid saneringsjobb, såsom asbest. Våra släpvagnar är byggda i enlighet med AFS och Arbetsmiljöverkets regler, förutsatt att Luftrenare och Stoftavskiljare installeras i det skitiga utrymmet.

I korta drag innebär det att det ska finnas utrymme på arbetsplatsen där man både kan byta kläder och utföra personlig hygien på ett säkert sätt. Skyddskläder, ordinarie arbetskläder eller privata kläder ska hållas åtskilda. Samma princip som för inomhusarbete ska gälla vid utomhusarbete. Ombyte ska vidare ske i tre steg där du har rena kläder i ena delen, en sluss till duschen och sedan smutsiga kläder i andra delen. En frånluftsfläkt placeras i sista steget så att man rör sig mot en ren luftström under den personliga saneringen.

Om så önskas så installerar vi gärna stoftavskiljare och luftrenare med stos efter era önskemål, som finns som valbar option.

Vi samarbetar med Husqvarna / Pullman Ermator för denna typen av installationer och  exempel på deras luftrenare A1000 och stoftavskiljaren S13. Men givetvis tar vi fram utrustning efter era krav och specifikationer.

Söker du en saneringssluss eller behöver köpa släp för asbestarbete har du med andra ord kommit rätt. 

Vi visar gärna varför du ska välja en kvalitetsvagn från Westbay och kan demonstrera viktiga skillnader mot andra lösningar på marknaden. Varmt välkommen att ringa eller besöka oss.  

 

Highlights
  • Inbyggd teknik för enkel rengöring
  • Både tank och fastanslutning
  • Tre-stegssluss
  • Varmvattenberedare
  • Elcentral med jordfelsbrytare
  • Kan anpassas efter önskemål
  • Får köras i 80 km/h
  • Valbar option av Luftrenare med stos & Stoftavskiljare efter önskemål.