Släpvagnar
Tillbehör
Reservdelar
Inbyte
Fordon
Defense & Government
Kontakt
0
Tillagd i varukorgen
Visa din varukorg
Släpvagnar
Flakvagnar
Personalvagnar
Biltransportsläp
Sänkbara släp
Tippvagnar
Skåpsläp
Kåpavagnar
Mässvagnar
Multisläp
Special
Tillbehör
Däck och fälg
Belysning
Lås och Larm
Lasta och säkra
Vinschar
Övrigt
Reservdelar
Inbyte
Fordon
Defense & Government
Inspiration
Kontakt
+46 (0)490-300 90
hej@westbay.se
Bli kontaktad
Stäng
Bli Kontaktad
Vänligen skriv in dina uppgfter, så hör vi av oss inom 24 timmar!
Obligatoriskt
Fyll i uppgifterna för detta obligatoriska fält
Obligatoriskt
Fyll i uppgifterna för detta obligatoriska fält
Jag vill ha hjälp med:
Köpa släpvagn
Köpa fordon
Tillbehör & reservdelar
Annat
Skicka
Släpvagnar
Personalvagnar
Bovagnar
Choose version
Anpassa
Summary
Välj version
Bovagn 2-4P
Från 6 557 kr/mån
Kontantpris 379 000 kr
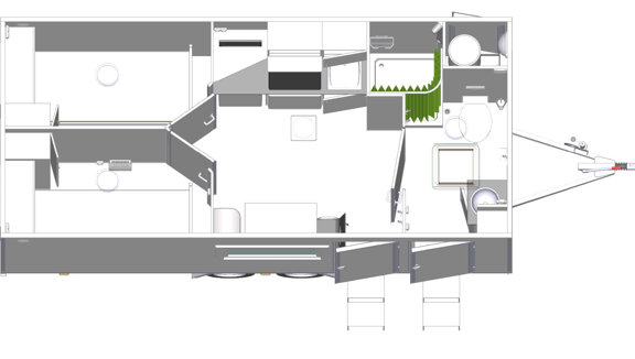
5700x2500 mm. Bovagn med kök, badrum och 2 st sovrum. Våningssäng som kan delas. Får köras i 80 km/h.
Anpassa ditt val
Bovagn 4/8 personer
Från 8 633 kr/mån
Kontantpris 499 000 kr
8900 x 2500 mm. Med 4 st sovrum och dubbelsängar (överdel kan tas ut). Komplett kök, badrum och rastdel. Får köras i 80 km/h.
Anpassa ditt val